10m 100w Nalalka Cadceedda ee Waddada oo leh Baytari Jel ah

Sharaxaad Gaaban:

Awood: 100W

Qalabka: Aluminium-la shubay

Jajab LED ah: Luxeon 3030

Waxtarka Iftiinka: >100lm/W

CCT: 3000-6500k

Xagasha Daawashada: 120°

IP: 65

Deegaanka Shaqada: 30℃~+70℃


Faahfaahinta Badeecada

Calaamadaha Alaabta

6M 30W NALKA WEYN EE CAD-CADDA LEH

FAA'IIDOOYINKA BATIRIYADA JEL

1. Waxqabadka ilaalinta deegaanka: Badeecadani waxay isticmaashaa electrolyte silica jel oo miisaankiisu sarreeyo halkii ay ka isticmaali lahayd sulfuric acid, kaas oo xalliya dhibaatooyinka wasakheynta deegaanka sida qulqulka ceeryaamo aashito iyo daxalka isku xirka kuwaas oo had iyo jeer jiray habka wax soo saarka iyo isticmaalka, waxaana loo isticmaali karaa bacrimin ahaan. Ma aha mid wasakhaysan, si fudud loo maarayn karo, iyo qaybta batteriga sidoo kale waa la dib u warshadeyn karaa oo dib loo isticmaali karaa.

2. La qabsiga dallacaadda: Baytariga jelka waxaa lagu dallaci karaa qiime hadda jira oo ah 0.3-0.4CA, waqtiga dallacaadda caadiga ahna waa 3-4 saacadood. Sidoo kale si dhakhso ah ayaa loo dallaci karaa, qiimaha hadda jira waa 0.8-1.5CA, waqtiga dallacaadda degdegga ahna waa 1 saac. Marka lagu dallacayo koronto sare, baytariga kolloidalka ee xoogga badan ma laha kor u kac heerkul oo muuqda, mana saameeyo waxqabadka elektrolytka iyo cimriga baytariga.

3. Astaamaha sii deynta hadda oo sarreeya: waqtiga sii deynta oo gaaban ee baytari leh awood gaar ah oo la qiimeeyay, ayaa sii xoogaysanaya awoodda sii deynta. Sababtoo ah iska caabinta gudaha ee aadka u yar ee elektrolytka, baytarigu wuxuu leeyahay astaamo sii deynta hadda oo sarreeya oo wanaagsan, waxaana guud ahaan lagu sii deyn karaa qiime hadda oo ah 0.6-0.8CA.

4. Astaamaha is-daadinta: is-daadinta yaryar, aan dayactir lahayn, si fudud loo kaydin karo muddo dheer. Baytariyada jelku waxay leeyihiin elektroodhyo yaryar oo is-daadin ah mana laha saameyn xasuuseed. Waxaa lagu kaydin karaa hal sano heerkulka qolka, awoodduna wali waxay ilaalin kartaa 90% awoodda wax soo saarka ee magacaaban.

5. Shaqada dallacaadda oo buuxda iyo shaqada dallacaadda oo buuxda: baytariga jelku wuxuu leeyahay awood buuxda oo dallacaadda iyo shaqo daadin buuxda ah. Soo noqnoqda oo daadinta xad-dhaafka ah ama daadinta buux-dhaafka ah saameyn yar ayay ku leedahay baytariga, ilaalinta xadka hoose ee 10.5V (danabka magacaaban ee 12V) waa la joojin karaa ama la dhimi karaa, taas oo aad muhiim ugu ah baytariyada korontada.

6. Awood xooggan oo is-bogsiin ah: baytariyada jelka waxay leeyihiin awood xooggan oo is-bogsiin ah, awood dib-u-soo-celin oo weyn, waqti gaaban oo soo kabasho ah, waxaana dib loo isticmaali karaa dhowr daqiiqo gudahood ka dib marka la saaro, taas oo si gaar ah faa'iido ugu leh isticmaalka degdegga ah.

7. Astaamaha heerkulka hooseeya: baytariyada jelka waxaa si caadi ah loogu isticmaali karaa jawiga u dhexeeya -35°C ilaa 55°C.

8. Cimri dheer oo adeeg ah: Waxaa loo isticmaali karaa sidii koronto isgaarsiineed in ka badan 10 sano, waana la dallaci karaa oo la damin karaa in ka badan 500 jeer wareegga qoto dheer marka loo isticmaalo koronto ahaan.

6M 30W NALKA WEYN EE CAD-CADDA LEH

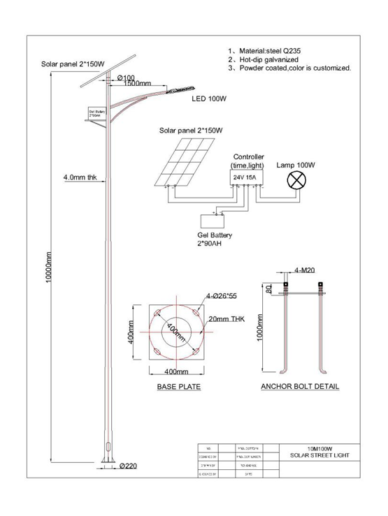
10M 100W NALKA CIIDDA LED EE WEYN EE WADDADA

Awood 100W  

Alaab Aluminium-la shubay
Jajab LED ah Luxeon 3030
Waxtarka Fudud >100lm/W
CCT: 3000-6500k
Xagasha Daawashada: 120°
IP 65
Deegaanka Shaqada: 30℃~+70℃
MOOGGA QORAXDA MONO

MOOGGA QORAXDA MONO

Module 150W*2  
Kaabsalaynta Muraayadaha/EVA/Unugyada/EVA/TPT
Waxtarka unugyada qoraxda 18%
Dulqaad ±3%
Danab awood ugu badan (VMP) 18V
Hadda oo leh awoodda ugu badan (IMP) 8.43A
Danabka wareegga furan (VOC) 22V
Koronto wareeg gaaban (ISC) 8.85A
Diode-yodh 1-baas-dhaaf
Fasalka Ilaalinta IP65
Ku shaqee temp.scope -40/+70℃
Qoyaan qaraabo ah 0 ilaa 1005
BATARI

BATARI

Danab la qiimeeyay 12V

Awoodda la qiimeeyay 90 Ah*2 xabbo
Miisaanka Qiyaasta ah (kg, ± 3%) 26.6KG*2 xabbo
Terminal Fiilo(2.5mm²×2 m)
Kharashka ugu Badan ee Hadda 10 A
Heerkulka Deegaanka -35~55 ℃
Cabbirka Dhererka (mm, ±3%) 329mm
Ballaca (mm, ±3%) 172mm
Dhererka (mm, ±3%) 214mm
Kiiska ABS
10A 12V XAKAMEYNTA QORAXDA

15A 24V KONTOROOLKA QORAXDA

Danab shaqada lagu qiimeeyay 15A DC24V  
Ugu badnaan. hadda sii daaya 15A
Ugu badnaan hadda dallacaadda 15A
Kala duwanaanshaha danab soo saarista Guddi ugu badan/ 24V 450WP guddi qorraxeed
Saxnaanta hadda joogtada ah ≤3%
Waxtarka joogtada ah ee hadda jira 96%
heerarka ilaalinta IP67
hadda aan culays lahayn ≤5mA
Ilaalinta danab xad-dhaaf ah oo lagu dallacayo 24V
Ilaalinta danab-ka oo si xad dhaaf ah u sii daaya 24V
Ka bax ilaalinta danabka xad-dhaafka ah ee sii daaya 24V
Cabbirka 60 * 76 * 22MM
Miisaanka 168g
nalka waddooyinka qoraxda

CIIDDA

Alaab Q235  
Dhererka 10M
Dhexroorka 100/220mm
Dhumucda 4.0mm
Gacan Fudud 60*2.5*1500mm
Bolt barroosinka 4-M20-1000mm
Flange 400 * 400 * 20mm
Daaweynta Dusha Sare Maquufin kulul oo la galvanized+ Dahaarka Budada
Dammaanad 20 Sano
nalka waddooyinka qoraxda

FAA'IIDOOYINKEENA

-Xakameyn Tayo oo Adag
Warshadeenna iyo alaabteennu waxay u hoggaansamayaan heerarka caalamiga ah ee badankood, sida Liiska ISO9001 iyo ISO14001. Waxaan u isticmaalnaa oo keliya qaybo tayo sare leh alaabadayada, kooxdayada khibradda leh ee QC-na waxay kormeertaa nidaam kasta oo qorraxda ah iyadoo la adeegsanayo in ka badan 16 tijaabo ka hor inta aysan macaamiisheenna helin.

- Soosaarka Toosan ee Dhammaan Qaybaha Ugu Muhiimsan
Waxaan soo saarnaa muraayadaha qorraxda, baytariyada lithium, laambadaha ledhka, tiirarka nalalka, iyo qalabka korontada ku shaqeeya, si aan u hubinno qiimo tartan ah, gaarsiin degdeg ah iyo taageero farsamo oo dhakhso badan.

- Adeeg Macaamiil oo waqtigeeda ku habboon oo hufan
Waxaa laga heli karaa 24/7 emayl, WhatsApp, Wechat iyo taleefanka, waxaan macaamiisheenna ugu adeegnaa koox iibiyayaal iyo injineero ah. Aqoon farsamo oo xooggan iyo xirfado isgaarsiineed oo wanaagsan oo luqado badan leh ayaa noo suurta gelinaya inaan si degdeg ah uga jawaabno su'aalaha farsamada ee macaamiisha badankood. Kooxdayada adeegga had iyo jeer waxay u duushaa macaamiisha waxayna siisaa taageero farsamo goobta.

MASHRUUC

mashruuca1
projcet2
projcet3
projcet4

FAA'IIDOOYINKA NALCADA QORAXDA EE JIIDADA KA FURAN

1. Si Fudud Loo Rakibo:

Nalalka waddooyinka ee kala qaybsan ayaa guud ahaan ka fudud in la rakibo marka loo eego nalalka waddooyinka ee caadiga ah sababtoo ah uma baahna fiilooyin ballaaran ama kaabayaal koronto. Tani waxay yareysaa waqtiga iyo kharashyada rakibidda.

2. Dabacsanaanta Naqshadeynta:

Naqshadaynta kala qaybsan waxay u oggolaanaysaa dabacsanaan badan oo ku saabsan booska looxa qorraxda iyo laambadaha. Laambadaha qorraxda waxaa la dhigi karaa meelaha ugu habboon ee loogu talagalay iftiinka qorraxda, halka laambadaha la dhigi karo si loogu iftiimiyo iftiinka ugu badan.

3. Waxtarka La Hagaajiyay:

Iyada oo la kala soocayo muraayadda qorraxda iyo qalabka nalalka, nalalka waddooyinka ee kala qaybsan ayaa wanaajin kara ururinta tamarta qorraxda si loo helo waxqabad wanaagsan, gaar ahaan meelaha ay iftiinka qorraxdu isbeddelayo.

4. Dayactir La Yareeyay:

Maadaama ay yar yihiin qaybaha ay ku badan yihiin walxaha, nalalka qorraxda ee kala qaybsan guud ahaan waxay u baahan yihiin dayactir yar. Looxyada qorraxda si fudud ayaa loo nadiifin karaa ama loo beddeli karaa iyada oo aan la kala furfurin qalabka oo dhan.

5. Bilicda La Horumariyay:

Naqshadda kala qaybsan ayaa ah mid muuqaal ahaan soo jiidasho badan, muuqaal ahaan moodada badan, waxayna si fiican ula jaanqaadi kartaa deegaanka magaalooyinka ama dabiiciga ah.

6. Awood Sare:

Nalalka waddooyinka ee kala qaybsan ayaa qaadi kara muraayadaha qorraxda ee waaweyn, taasoo keeni karta koronto badan iyo waqti dheer oo habeenkii lagu shaqeeyo.

7. Ballaarinta:

Nidaamyadan si fudud ayaa loo ballaarin karaa ama loo dhimi karaa iyadoo lagu saleynayo baahiyaha nalalka gaarka ah, taasoo ka dhigaysa kuwo ku habboon rakibidda yar iyo kuwa waaweynba.

8. Waxtarka Kharashka:

In kasta oo maalgashiga bilowga ah uu ka sarreeyo nalalka waddooyinka ee dhaqameed, haddana keydinta muddada dheer ee kharashka korontada iyo dayactirka ayaa ka dhigi karta nalalka waddooyinka ee kala qaybsan inay noqdaan xal kharash-ool ah.

9. Deegaanka u wanaagsan:

Sida dhammaan nalalka qorraxda, nalalka waddooyinka ee kala qaybsan waxay yareeyaan ku tiirsanaanta shidaalka fosil-ka, waxay gacan ka geystaan ​​​​yareynta qiiqa kaarboonka waxayna kor u qaadaan horumar waara.

10. Is-dhexgalka Tiknoolajiyada Casriga ah:

Nalalka waddooyinka ee kala qaybsan ee qoraxda ayaa lagu dari karaa tiknoolajiyad casri ah si loo gaaro shaqooyin sida dareemayaasha dhaqdhaqaaqa, hawlaha yareynta iftiinka, iyo la socodka fog.


  • Kii hore:
  • Xiga:

  • Halkan ku qor fariintaada oo noo soo dir